Discover Your Dream Home with Our Latest Listings and Personalized Services!
Join Us for Exclusive Open House Events This Weekend and Find Your Perfect Home!
Take Advantage of Limited-Time Offers on Luxury Homes with Stunning Features!
Explore Our Exciting New Property Listings Now Available in Prime Locations!
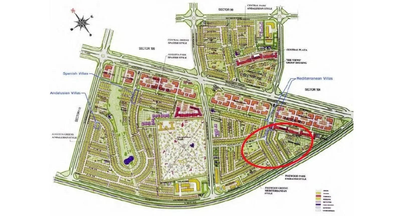
The Terraces Villa Floors stands out as one of the top residential projects in Mohali, blending serene living with urban convenience in the heart of real estate in Mohali. Developed by Emaar India, a renowned real estate company in Mohali, this project offers independent low-rise villa floors designed for comfort and elegance. Spread across approximately 5 acres, it caters to families looking for residential plots in Mohali or Mohali residential projects with a touch of luxury. Launched in 2009, it's now ready for occupancy, making it a solid choice among new housing projects in Mohali and upcoming housing projects in Mohali. With its focus on green spaces and community living, it's perfect for those exploring residential projects in Chandigarh or upcoming residential projects in Chandigarh. The project's RERA number, PBRERA-SAS81-PR0119, ensures transparency, aligning with GMADA-approved residential projects in Mohali. Whether you're interested in high-rise flats in Mohali or villa-style homes, this development in Sector 108 offers a peaceful retreat while being close to Mohali's commercial projects.
The Terraces Villa Floors emphasizes Vastu compliance, ensuring harmonious energy flow. Entrances face favorable directions like north-east for prosperity, kitchens are positioned in the south-east for health, and bedrooms avoid south-west placements to promote restful sleep. Open spaces allow natural light and ventilation, aligning with Vastu principles for well-being. This makes it a top pick for Vastu-conscious buyers in residential property in Mohali.

Emaar India, the builder behind this Mohali project, is a global real estate giant known for iconic developments. Their in-house architects focus on innovative designs, earning awards like the DNA Real Estate & Infrastructure Award for Residential Project of the Year and EPC World Award for Green Building Contributions. In Mohali, Emaar's projects reflect architectural excellence, blending modern aesthetics with functionality.
| Floor Type | Super Area (Sq. Ft.) | Carpet Area (Sq. Ft.) | Balcony Area (Sq. Ft.) | Approx. Pricing (INR) |
|---|---|---|---|---|
| 3 BHK Villa Floor | 1443 | 1154 | 100 | 80 Lac - 1 Cr |
| 3 BHK Villa Floor | 1524 | 1219 | 120 | 85 Lac - 1.1 Cr |
| 3 BHK Villa Floor | 1750 | 1400 | 150 | 95 Lac - 1.2 Cr |
| 3 BHK Villa Floor | 2250 | 1800 | 200 | 1.2 Cr - 1.5 Cr |
Started January 2009, completed 2019.
Explore nearby amenities to precisely locate your property and identify surrounding conveniences, providing a comprehensive overview of the living environment and the property's convenience.